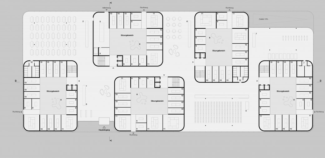
Schtibäng
, Berne
bâtiment administratif
Type d'objet
Projektwettbewerb Wankdorfcity Bern
Durée
2009 / 2010
Etat
1er prix - 1er rang
fr
de
Projets
Références
Portrait
Jobs
Contact
News