
11.2025
NOUS AVONS DÉMÉNAGÉ !
Les bureaux de kpa architectes sa se trouvent désormais à la Route André-Piller 18 à Givisiez
09.2025 / 2027
Les Coteaux de Farvagny - travaux en cours
29.08.2025
Les Monts de Jéricho - Publication demande de permis de construire
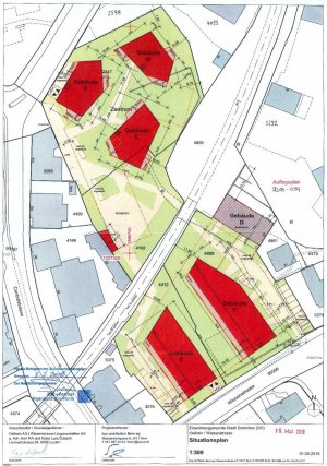
07.2025
SAIA - Bahnhofstrasse 18, Murten: Baupublikation 18.07.2025
2024 / 2026
Jura 47: chantier en cours
20.12.2024
quadrilatère Arsenaux - Chaillet - Guillimann: permis de construire
16.03.2023
Tremplin - Arsenaux 16: permis de construire
12.10.2021
Réaffectation cure & grange, St.-Aubin
Permis de construire en force.
06.2021
La Fonderie, Fribourg
LA BUTTE DE PÉROLLES A TREMBLÉ À FRIBOURG
La fondation pour le logement des étudiants Apartis frappe un grand coup à Fribourg en construisant 5 immeubles d’une traite sur un terrain difficile. Certificat société à 2000 watts compris.
22.12.2020
Testplanung Wegmühle – Online-Publikation, Bantiger Post
Als Grundlage für die Planung auf dem Areal der Wegmühle Bolligen hat sich die Mühle Walther AG im Jahr 2019 dazu entschlossen – zusammen mit der Gemeinde Bolligen – , mittels eines Testplanungsverfahrens die möglichen baulichen Entwicklungen auf dem Mühleareal aufzuzeigen. Aufgrund der aktuellen Covid-Situation konnte die im November 2020 vorgesehene Ausstellung der Arbeiten Testplanungsverfahrens nach SIA 143 nicht stattfinden und wird durch die Online-Publikation unter http://www.testplanung-wegmuehle.ch ersetzt.
05.08.2020
Frilopark, Huttwil
Permis de construire en force.
09.08.2018
Neubauprojekt Pflegehotel am Bielersee
Auszug Geschäftsbericht 2017/18 der Impact Immobilien AG
12.04.2017
La Fonderie, Fribourg
Postindustrieller Strukturwandel /
Changement structurel postindustriel