Schlossareal Muntelier, Muntelier

Projektwettbewerb

Schlossareal Muntelier
Objektart 26 Wohneinheiten
Zeitraum 2018 / 2019

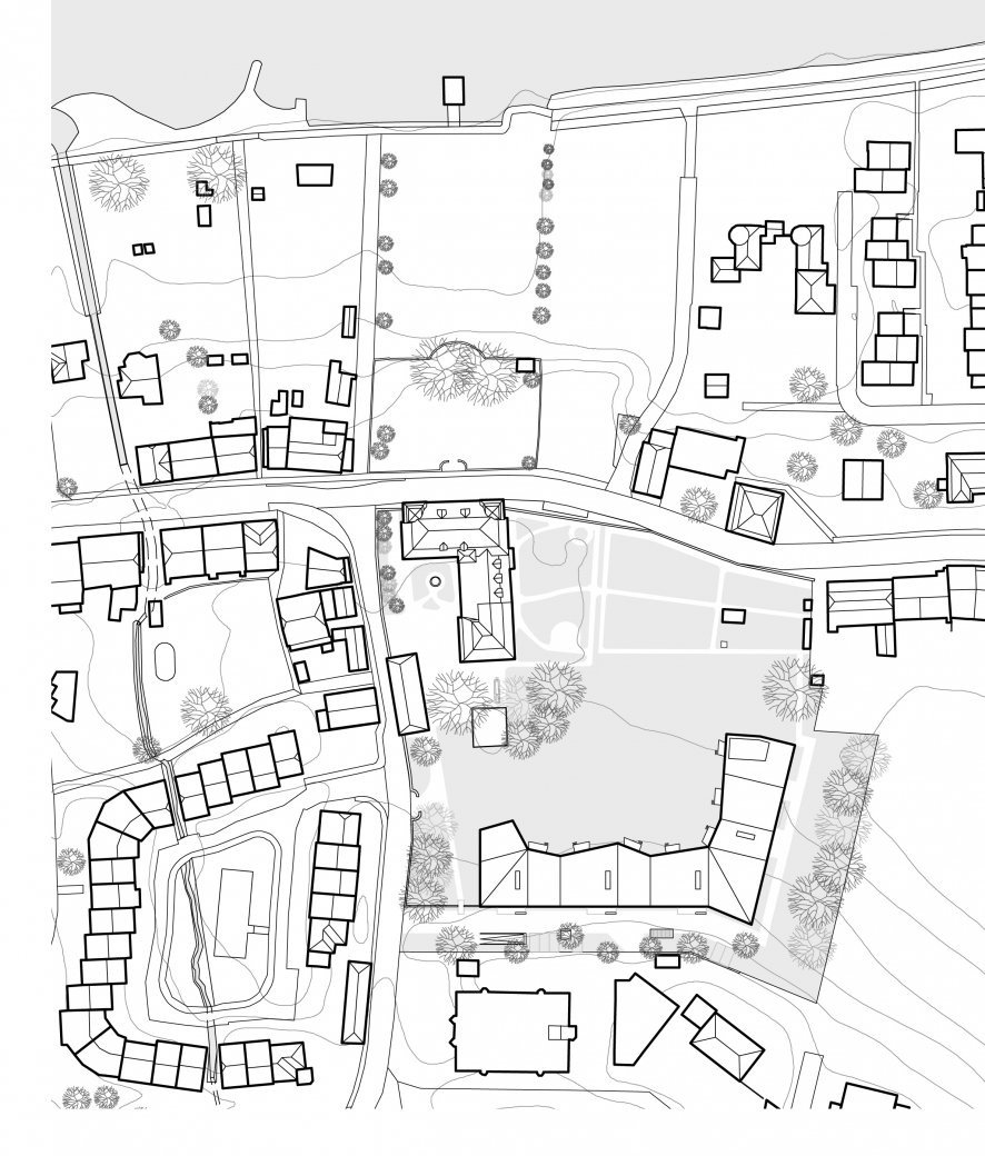
Kernstück des chrysaliden Ensembles ist ein dreigeschossiger Baukörper, der sich in den Parkbestand eingliedert und mit einer einladenden Geste Richtung Schloss hin öffnet. Er ist im nordöstlichen Teil des Parks situiert und wendet sich von den heterogenen Nachbarbauten des Umfeldes ab. Mit der als Grenzmauer verlängerten Südostfassade nimmt er das Thema der Schlossmauer auf. Über den Wohnweg mit Begegnungszonen, Zu- und Wegfahrt sowie Besucherabstellplätzen gelangt man durch in die massive Fassadenmauer eingezogene Rücksprünge ins Gebäudeinnere wie auch in den Park. Die Verwebung von historisch bedeutenden Gebäuden mit einer zeitgenössischen Intervention schafft neue bauliche und atmosphärische Dichte.

Zwei Faktoren tragen massgeblich zum landschaftsarchitektonischen Gestaltungskonzept bei: die bestehende Siedlungsstruktur im unmittelbaren Umfeld und die städtebauliche Setzung des neuen Baukörpers, der eine ausgedehnte Grünanlage fasst. Im Zentrum der Aussenraumgestaltung steht daher die Auseinandersetzung mit dem Charakter des Ortes und mit der historischen Bausubstanz sowie des Parks.

Die städtebauliche Setzung ermöglicht eine starke und vielschichtige Beziehung zwischen dem neuen Raumkörper und dessen unmittelbarem Aussenraum, wobei das übergreifende Dach zum wichtigen verbindenden und schützenden Element wird. Ziel ist es, dadurch eine Einheit sowohl im Äusseren (Gebäudekörper) als auch in der inneren Raumstruktur zu schaffen. Das Faltdach tritt in Dialog mit dem historischen Bestand und übernimmt Elemente der Formensprache einer archetypischen Architektur. Die mehrfach geknickte West- und Nordwestfassade gibt mit ihrer bewegten Dachsilhouette dem Aussenraum des Parks einen Halt. Sie ist grossflächig verglast und öffnet den Innenraum zum Park. Der grosszügige Gartenraum bleibt mit seinem Baumbestand erhalten und wird verstärkt erlebbar. Die Ausfachung mit vertikalen Sichtblenden aus Holz rhythmisiert spielerisch zwischen den massiven Tragpfeilern. Tief eingeschnittene Loggien bringen Licht und Grün in den Raumkörper. Die Weite des Ausblicks wird das bestimmende Thema und auf eindrucksvolle Weise inszeniert. Malerische Baumgruppen und grosszügige Wiesenflächen verleihen das Gefühl von Stabilität und Endlosigkeit im Garten.

Die Grundidee sieht vielfältig nutzbare Parkflächen: Wiesenfläche, Gemüse- und Obstgarten, Spielflächen, schattenspendende Baumgruppen, ebenso wie stimmungsvolle Bereiche vor. Ein ringförmiges, szenisches Wegnetz mit platzartigen Ausweitungen lädt zum Verweilen ein und ist Teil der grosszügigen Grünanlage. Der Weg zum See führt am bestehenden Stallbau vorbei, welcher eine neue Funktion erhält: Als Café und Treffpunkt wird er zum Mittler zwischen Bewohner, Park und Quartier.

Mit der Projektidee untersuchen wir einerseits die Beziehungen der Volumen zueinander im gewachsenen Kontext, als auch die Interpretation moderner Wohnformen im historischen Umfeld. Jede Wohnung erhält einen eigenen privaten Aussenraum. Nicht nur im Erdgeschoss nehmen Galerien und Splitlevel Bezug zur Topographie und eröffnen nach innen wie aussen spannende Sicht- und Querbezüge. Grundrisstypologien mit situativ verschiedenartigen Öffnungen verleihen jeder Wohnung eine individuelle Ausprägung und Gewichtung. Stimmungsvoll erstreckt sich der Blick von der generösen Penthouse-Wohnung über die Dachterrasse bis hin zum See und den sanften Zügen des Vully.

Die massiven Umfassungsmauern aus strukturiertem Dämmbeton in verschiedenen Oberflächen und mit feinen Vor- und Rücksprüngen in der Fassadenebene interpretieren zum einen wegseitig die Schlossmauer neu und wiederspiegeln zum anderen parkseitig Elemente der historischen Holzbauten.

Durch den behutsamen und respektvollen Umgang mit dem Bestehenden soll in zeitgenössischer Interpretation der baulichen Fortsetzung eine Kontinuität des traditionellen Ortsbildes geschaffen werden.

77_schlossarealmuntelier